Добро пожаловать на http://vipplan.ru

Випплан Каневская - это тысячи проектов домов в нашем каталоге!

Вы всегда сможете найти для себя проект дома вашей мечты! Даже если этого не случилось, мы готовы в любую минуту предложить проект индивидуального дома.

Забыли пароль?
Вы еще не регистрировались?

Перейдите по ссылке ниже на страницу регистрации.

Регистрация...

Внимание!!!

В проектную документацию могут быть внесены изменения любой сложности, в соответствии в Вашими пожеланиями!

Полезные статьи

Как сделать мансардную крышу

Мансарда - обеспечивает дополнительную жилую площадь одно- или двухуровневой постройке за счет подкровельного пространства и, благодаря видимым элементам конструкции крыши, выполняет немаловажную эстетическую функцию. Дома с мансардой достаточно распространены в Краснодарском крае благодаря своей привлекательности и неповторимости. ...

Системы утепления фасада

Основные тепловые потери происходят через стены, фундамент и крышу. Уменьшить их можно с помощью утеплителя, создав внутри дома оптимальный для жизни климат, с достаточно ровным температурным режимом и низкой влажностью....

Проекты домов и коттеджей > Каталог проектов домов > Дом с мансардой, подвалом, гаражом, террасой и балконом Vg975

Дом с мансардой, подвалом, гаражом, террасой и балконом Vg975

Дом с мансардой, подвалом, гаражом, террасой и балконом
Зарегистрируйтесь

Проект № Vg975


Техническое описание
Общая площадь: 235.55 м2
Жилая площадь: 93.1 м2
Высота здания: 9.44 м
Размеры дома: 12.59м×12.02м
Кол-во комнат: 6
Цокольный этаж: нет
Гараж: нет
Мансарда: есть

Kонструкция
Фундамент: ленточный, монолитный ж/б
Перекрытия: сборные ж/б плиты
Материал стен: Кирпич

Архитектурный раздел
Конструктивный раздел
АР+КР - 64 000 (Со скидкой 20%)
Проект индивидуального одноквартирного одноэтажного жилого дома с мансардой с размерами здания 12,59 x 12,02 м. Наружная отделка здания - облицовочный кирпич, цоколь - отделка под камень. Кровля - гибкая черепица. Фундамент - ленточный, монолитный ж/б. Наружные стены дома: кирпич керамический забутовочный, вентзазор, облицовочный кирпич. Внутренние стены - кирпич керамический забутовочный. Вентканалы - кирпич керамический полнотелый. Снаружи вентканалы и дымоходы отделываются облицовочным кирпичом. Перегородки - кирпич керамический забутовочный. Перемычки - монолитные и сварные из профиля проката. Перекрытие над первым этажом - сборное (плиты перекрытий) ж/б, пол первого этажа - пол по грунту. Пол гаража - плиты перекрытий ж/б. В гараже предусматривается яма для осмотра автомобиля. Пол погреба - пол по грунту. Крыша - скатная. Материал кровли - гибкая черепица. Окна - металлопластиковые, выполненные по индивидуальному заказу. Лестница - выполняется по индивидуальному заказу. В гараже предусматривается лестница для спуска в погреб.
Генплан застройки участка / Паспорт проекта 7000 руб / 10000 руб
Инженерный раздел (полный) 118000 руб
Смета на строительство 59000 руб
Теплотехнический расчет материалов стен Бесплатно
Стоимость проекта со незначительнми изменениями 74100 руб
Стоимость проекта со средними изменениями* 91800 руб
Стоимость проекта со значительными изменениями** 96500 руб

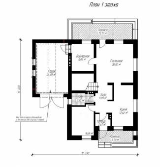
План цокольного этажа


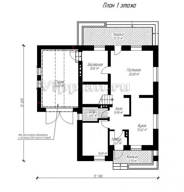
Терраса — 13,72 кв м
Гостиная — 20,80 кв м
Холл — 9,99 кв м
Кухня — 12,62 кв м
Тамбур — 2,67 кв м
С/у — 3,65 кв м
Крыльцо — 5,70 кв м
Бойлерная — 8,84 кв м
Гараж — 24,03 кв м
Гостевая — 9,69 кв м

План первого этажа


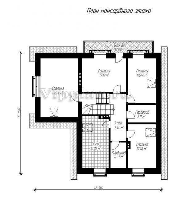
Балкон — 8,36 кв м
Холл — 7,94 кв м
Спальня — 12,38 кв м
Спальня — 12,87 кв м
Спальня — 15,12 кв м
Спальня — 22,24 кв м
Гардероб — 5,11 кв м
Гардероб — 4,23 кв м
С/у — 13,85 кв м

План мансардного этажа



Дом с мансардой, подвалом, гаражом, террасой и балконом Дом с мансардой, подвалом, гаражом, террасой и балконом Дом с мансардой, подвалом, гаражом, террасой и балконом Дом с мансардой, подвалом, гаражом, террасой и балконом

Модификации проектов

Внесение изменений и привязка к участку строительства

В любой из проектов от компании VIPplan - Каневская по вашему желанию могут быть внесены изменения в материалы стен, материалы наружной отделки дома, а также будет произведена адаптация проекта под конкретный регион строительства (с учетом грунтов региона, геологических особенностей вашего участка и местных климатических условий) - БЕСПЛАТНО !!! (кроме проектов со скидкой и проектов наших партнеров).

Любой из проектов, размещенных на сайте kanevskaya.vipplan.ru мы можем выполнить из требуемых вам строительных материалов: ячеистый бетон (газобетон, пеноблок), керамоблок, кирпич, шлакоблок, бетонный блок, дерево (брус, клееный брус), каркасная технология (деревянный каркас, металлокаркас (ЛСТК)).

Фасад дома и его наружную отделку так же возможно выполнить с применением различных облицовочных материалов: структурной штукатурки, (с утеплителем и без), сайдингом (пластиковый или металлосайдинг), фиброплитами, кирпича.

 
6 Избранные
проекты

Доставка проектов по России: Москва (Московская область), Санкт-Петербург (Ленинградская область), Краснодар, Ростов-на-Дону, Ставрополь, Сочи, Волгоград, Новосибирск, Белгород, Брянск, Воронеж, Саратов, Хабаровск, Астрахань, Нальчик, Владикавказ, Екатеринбург, Тюмень, Самара, Нижний Новгород, Казань, Пермь, Уфа, Челябинск, Красноярск, Ханты-Мансийск, Иркутск, Курган, Оренбург, Омск, Томск, Барнаул, Новокузнецк, Кемерово, Абакан, Чита, Якутск, Южно-Сахалинск, Петропавловск-Камчатский и страны ближнего зарубежья: Белоруссия, Украина, Казахстан