Добро пожаловать на http://vipplan.ru

Випплан Каневская - это тысячи проектов домов в нашем каталоге!

Вы всегда сможете найти для себя проект дома вашей мечты! Даже если этого не случилось, мы готовы в любую минуту предложить проект индивидуального дома.

Забыли пароль?
Вы еще не регистрировались?

Перейдите по ссылке ниже на страницу регистрации.

Регистрация...

Внимание!!!

В проектную документацию могут быть внесены изменения любой сложности, в соответствии в Вашими пожеланиями!

Полезные статьи

Мероприятия по получению разрешения на строительство в Каневской

Хотите построить дом в Каневской? Не знаете с чего начать? Для начала, нужно заказать проект, а после получить разрешение на строительство. ...

Выбор проекта дома в Каневской. Типовой или индивидуальный?

Строительство дома начинается с выбора проекта. От него будет зависит удобство, комфорт и функциональность Вашего будущего дома. Какой проект выбрать? В каталоге проектов домов VIPplan Каневская предоставлен огромный выбор проектов на любой вкус и кошелек. В итоге выбор сводится к покупке типового проекта дома или заказа индивидуального проекта. Для упращения задачи, расскажем о каждом варианте по отдельности...

Проекты домов и коттеджей > Каталог проектов домов > Одноэтажный дом с эркером и террасой Vg2452

Одноэтажный дом с эркером и террасой Vg2452

Одноэтажный дом с эркером и террасой
Зарегистрируйтесь

Проект № Vg2452


Техническое описание
Общая площадь: 79.35 м2
Жилая площадь: 50.77 м2
Высота здания: 6.55 м
Размеры дома: 10.5м×10.2м
Кол-во комнат: 3
Цокольный этаж: нет
Гараж: нет
Мансарда: нет

Kонструкция
Фундамент: свайно-ростверковый
Перекрытия: деревянные балки
Материал стен: Газобетон

Архитектурный раздел
Конструктивный раздел
АР+КР - 44 000 (Со скидкой 20%)
Модель проекта одноэтажного дома с мансардой с размерами здания 10,64 x 14,64 м. Наружная отделка здания – облицовочный кирпич, камень. Фундамент – свайно-ростверковый. Наружные стены – газобетонные блоки, воздушный зазор, облицовочный кирпич. Внутренние стены - газобетонный блок. Перегородки – газобетонный блок. Пол этажа - пол по грунту, чердачное перекрытие - деревянные балки. Крыша многоскатная. Кровля – металлочерепица. Окна — металлопластиковые.
Генплан застройки участка / Паспорт проекта 7000 руб / 10000 руб
Инженерный раздел (полный) 50000 руб
Смета на строительство 25000 руб
Теплотехнический расчет материалов стен Бесплатно
Стоимость проекта со незначительнми изменениями 53000 руб
Стоимость проекта со средними изменениями* 59000 руб
Стоимость проекта со значительными изменениями** 60500 руб

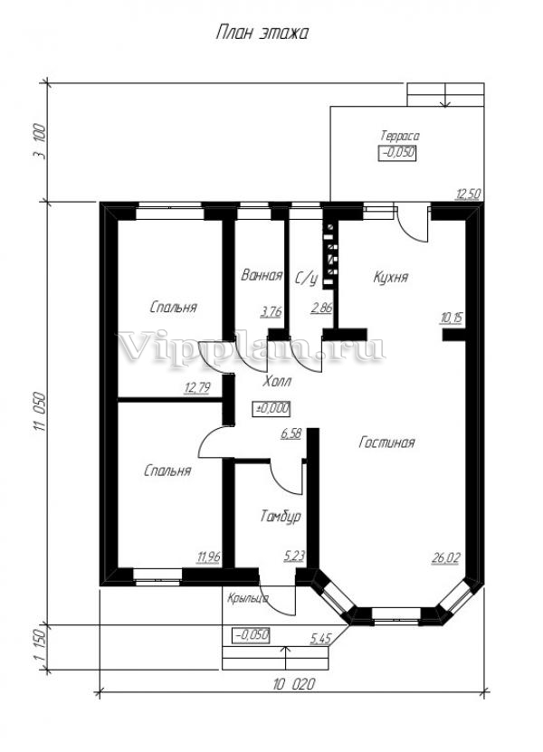
План первого этажа


Тамбур — 5,23 м2
Холл — 6,58 м2
Гостиная — 26,02 м2
Кухня — 10,15 м2
С/у — 2,86 м2
Ванная — 3,76 м2
Спальня — 12,79 м2
Спальня — 11,96 м2
Одноэтажный дом с эркером и террасой Одноэтажный дом с эркером и террасой Одноэтажный дом с эркером и террасой Одноэтажный дом с эркером и террасой

Модификации проектов

Внесение изменений и привязка к участку строительства

В любой из проектов от компании VIPplan - Каневская по вашему желанию могут быть внесены изменения в материалы стен, материалы наружной отделки дома, а также будет произведена адаптация проекта под конкретный регион строительства (с учетом грунтов региона, геологических особенностей вашего участка и местных климатических условий) - БЕСПЛАТНО !!! (кроме проектов со скидкой и проектов наших партнеров).

Любой из проектов, размещенных на сайте kanevskaya.vipplan.ru мы можем выполнить из требуемых вам строительных материалов: ячеистый бетон (газобетон, пеноблок), керамоблок, кирпич, шлакоблок, бетонный блок, дерево (брус, клееный брус), каркасная технология (деревянный каркас, металлокаркас (ЛСТК)).

Фасад дома и его наружную отделку так же возможно выполнить с применением различных облицовочных материалов: структурной штукатурки, (с утеплителем и без), сайдингом (пластиковый или металлосайдинг), фиброплитами, кирпича.

 
6 Избранные
проекты

Доставка проектов по России: Москва (Московская область), Санкт-Петербург (Ленинградская область), Краснодар, Ростов-на-Дону, Ставрополь, Сочи, Волгоград, Новосибирск, Белгород, Брянск, Воронеж, Саратов, Хабаровск, Астрахань, Нальчик, Владикавказ, Екатеринбург, Тюмень, Самара, Нижний Новгород, Казань, Пермь, Уфа, Челябинск, Красноярск, Ханты-Мансийск, Иркутск, Курган, Оренбург, Омск, Томск, Барнаул, Новокузнецк, Кемерово, Абакан, Чита, Якутск, Южно-Сахалинск, Петропавловск-Камчатский и страны ближнего зарубежья: Белоруссия, Украина, Казахстан