Добро пожаловать на http://vipplan.ru

Випплан Каневская - это тысячи проектов домов в нашем каталоге!

Вы всегда сможете найти для себя проект дома вашей мечты! Даже если этого не случилось, мы готовы в любую минуту предложить проект индивидуального дома.

Забыли пароль?
Вы еще не регистрировались?

Перейдите по ссылке ниже на страницу регистрации.

Регистрация...

Внимание!!!

В проектную документацию могут быть внесены изменения любой сложности, в соответствии в Вашими пожеланиями!

Полезные статьи

Мероприятия по получению разрешения на строительство в Каневской

Хотите построить дом в Каневской? Не знаете с чего начать? Для начала, нужно заказать проект, а после получить разрешение на строительство. ...

Приготовление раствора для наливного пола

Если вы хотите чтобы пол получился ровным, наливные полы – лучший вариант. Особое внимание следует уделить приготовлению раствора. А все потому, что после нанесения на цементную стяжку или бетонное основание внести коррективы или изменить что-либо уже не получится. Поэтому к замешиванию раствора стоит подходить очень внимательно....

Проекты домов и коттеджей > Каталог проектов домов > Проект одноэтажного дома с мансардой и гаражом Vg120

Проект одноэтажного дома с мансардой и гаражом Vg120

Проект одноэтажного дома с мансардой и гаражом
Зарегистрируйтесь

Проект № Vg120


Техническое описание
Общая площадь: 227.89 м2
Площадь гаража 23.19 м2
Жилая площадь: 104.5 м2
Высота здания: 8.88 м
Размеры дома: 13.56м×13.21м
Кол-во комнат: 5
Цокольный этаж: нет
Гараж: есть
Мансарда: есть

Kонструкция
Фундамент: Плита
Отделка дома: газобетонные блоки с отделкой фасадной штукатуркой
Перекрытия: Ж\б плиты

Архитектурный раздел
Конструктивный раздел
АР+КР - 64 000 (Со скидкой 20%)
Описание
Проект индивидуального одноэтажного одноквартирного жилого дома с мансардой с размерами здания 13,56x 13,21м.
Наружная отделка здания - комбинированная: фасадная штукатурка, облицовочный кирпич, деревянные панели.
Цоколь- кирпич гиперпрессованный облицовочный.
Кровля - металлочерепица.
Наружные стены 1 этажа: газобетонные блоки, вентзазор, отделка облицовочным кирпичом.
Наружные стены мансардного этажа: газобетонные блоки с отделкой фасадной штукатуркой.
Частично по фасаду -отделка деревянными панелями.
Внутренние стены - из газобетонных блоков.
Перегородки выполнить из СКЦ-2, с оштукатуриванием с двух сторон.
Перемычки - монолитные и сварные из профиля проката.
Перекрытие над первым этажом - сборные ж/б плиты перекрытий.
Пол первого этажа - пол по грунту.
Окна - металлопластиковые, выполненные по индивидуальному заказу.
Лестница - по металлическому каркасу. Выполняется по индивидуальному заказу.
Технико-экономические показатели
Наименование
Ед. изм.
Площадь
Примечание
1
Общая площадь помещений
м2
227,89
 
2
Этажность
 
1
 
3
Высота здания
м
8,88
От отметки ур.земли до конька

 

Генплан застройки участка / Паспорт проекта 7000 руб / 10000 руб
Инженерный раздел (полный) 114000 руб
Смета на строительство 57000 руб
Теплотехнический расчет материалов стен Бесплатно
Стоимость проекта со незначительнми изменениями 74300 руб
Стоимость проекта со средними изменениями* 91400 руб
Стоимость проекта со значительными изменениями** 96000 руб

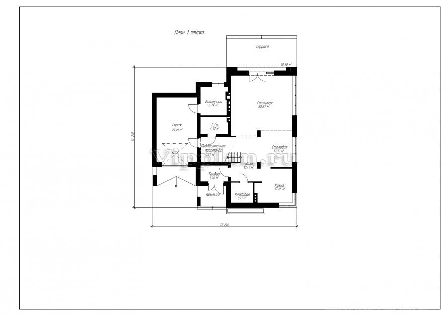
План первого этажа


Тамбур - 3.9 м2
Холл - 10.41 м2
Кладовая - 3.93 м2
Кухня - 10.28 м2
Столовая - 10.32 м2
Лестница - 5.67 м2
Гостиная - 30.87 м2
Санузел - 4.12 м2
Бойлерная - 6.74 м2
Гараж - 23.18 м2

Проект одноэтажного дома с мансардой и гаражом

Проект одноэтажного дома с мансардой и гаражом

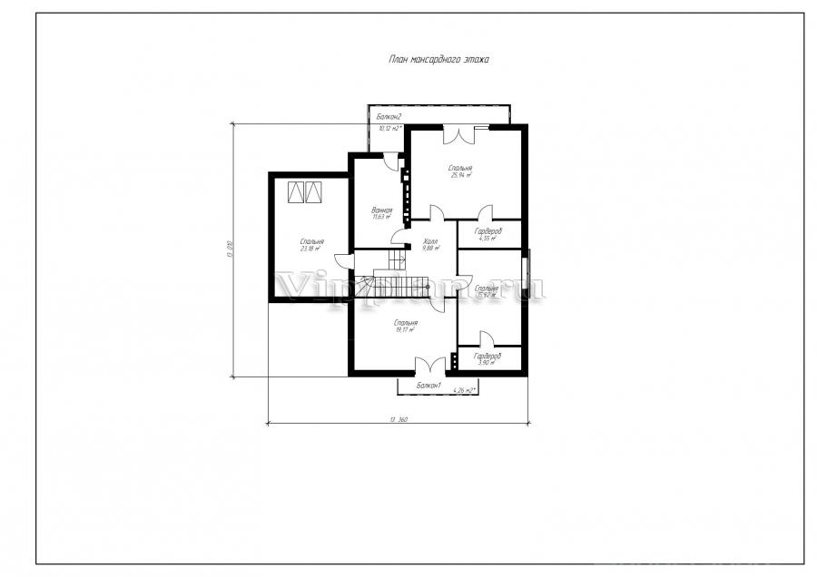
План второго этажа


Холл - 9.88 м2
Ванная - 11.63 м2
Спальня - 23.18 м2
Спальня - 25.94 м2
гардероб - 4.55 м2
Спальня - 15.92 м2
Гардероб - 3.90 м2
Спальня - 19.17 м2
Балкон - 4.26 м2
Проект одноэтажного дома с мансардой и гаражом Проект одноэтажного дома с мансардой и гаражом Проект одноэтажного дома с мансардой и гаражом Проект одноэтажного дома с мансардой и гаражом

Модификации проектов

Внесение изменений и привязка к участку строительства

В любой из проектов от компании VIPplan - Каневская по вашему желанию могут быть внесены изменения в материалы стен, материалы наружной отделки дома, а также будет произведена адаптация проекта под конкретный регион строительства (с учетом грунтов региона, геологических особенностей вашего участка и местных климатических условий) - БЕСПЛАТНО !!! (кроме проектов со скидкой и проектов наших партнеров).

Любой из проектов, размещенных на сайте kanevskaya.vipplan.ru мы можем выполнить из требуемых вам строительных материалов: ячеистый бетон (газобетон, пеноблок), керамоблок, кирпич, шлакоблок, бетонный блок, дерево (брус, клееный брус), каркасная технология (деревянный каркас, металлокаркас (ЛСТК)).

Фасад дома и его наружную отделку так же возможно выполнить с применением различных облицовочных материалов: структурной штукатурки, (с утеплителем и без), сайдингом (пластиковый или металлосайдинг), фиброплитами, кирпича.

 
6 Избранные
проекты

Доставка проектов по России: Москва (Московская область), Санкт-Петербург (Ленинградская область), Краснодар, Ростов-на-Дону, Ставрополь, Сочи, Волгоград, Новосибирск, Белгород, Брянск, Воронеж, Саратов, Хабаровск, Астрахань, Нальчик, Владикавказ, Екатеринбург, Тюмень, Самара, Нижний Новгород, Казань, Пермь, Уфа, Челябинск, Красноярск, Ханты-Мансийск, Иркутск, Курган, Оренбург, Омск, Томск, Барнаул, Новокузнецк, Кемерово, Абакан, Чита, Якутск, Южно-Сахалинск, Петропавловск-Камчатский и страны ближнего зарубежья: Белоруссия, Украина, Казахстан