Добро пожаловать на http://vipplan.ru

Випплан Каневская - это тысячи проектов домов в нашем каталоге!

Вы всегда сможете найти для себя проект дома вашей мечты! Даже если этого не случилось, мы готовы в любую минуту предложить проект индивидуального дома.

Забыли пароль?
Вы еще не регистрировались?

Перейдите по ссылке ниже на страницу регистрации.

Регистрация...

Внимание!!!

В проектную документацию могут быть внесены изменения любой сложности, в соответствии в Вашими пожеланиями!

Полезные статьи

Применение свайных фундаментов

Сваи представляют собой длинные стержни, погруженные глубоко в грунт или изготовленные непосредственно в грунте. Покупные сваи с одной стороны имеют заостренный конец, который забивается в почву с помощью специальной техники. Установка свай, изготовленных своими руками, предполагают бурение скважин, армирование и заливку бетонного раствора. ...

Выбор участка для строительства дома

Если вы решили приобрести участок земли и построить на нем дом или дачу. То данная статья специально для вас. А так же мы поможем вам в выборе проекта для выбранного вами участка....

Проекты домов и коттеджей > Каталог проектов домов > Дом с мансардой, гаражом, террасой и балконами Vg1101

Дом с мансардой, гаражом, террасой и балконами Vg1101

Дом с мансардой, гаражом, террасой и балконами
Зарегистрируйтесь

Проект № Vg1101


Техническое описание
Общая площадь: 179.71 м2
Жилая площадь: 95.9 м2
Высота здания: 9.03 м
Размеры дома: 12.81м×15.1м
Кол-во комнат: 5
Цокольный этаж: нет
Гараж: нет
Мансарда: есть

Kонструкция
Фундамент: Буронабивной
Перекрытия: Деревянные
Материал стен: Газобетон

Архитектурный раздел
Конструктивный раздел
АР+КР - 60 000 (Со скидкой 20%)
Проект индивидуального одноэтажного одноквартирного жилого дома с мансардой с размерами здания 12,81 x 15,10 м. Наружная отделка здания - фасадная штукатурка и деревянные панели. Фундамент - буронабивной, (свайно-ростверковый). Наружные стены - газосиликатные блоки, утеплитель - экструдированный пенополистирол с отделкой фасадной щтукатуркой и деревянными панелями Внутренние стены - газосиликатные блоки Перегородки выполняются из газосиликатных блоков. Снаружи вентканалы и дымоходы оштукатуриваются. Перемычки - монолитные и сварные из профиля проката. Перекрытие над первым этажом – деревянные балки. Пол первого этажа - пол по грунту. Крыша - многоскатная. Материал кровли - гибкая кровля. Окна - металлопластиковые, выполненные по индивидуальному заказу.
Генплан застройки участка / Паспорт проекта 7000 руб / 10000 руб
Инженерный раздел (полный) 90000 руб
Смета на строительство 45000 руб
Теплотехнический расчет материалов стен Бесплатно
Стоимость проекта со незначительнми изменениями 70500 руб
Стоимость проекта со средними изменениями* 84000 руб
Стоимость проекта со значительными изменениями** 87600 руб

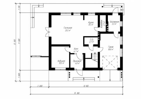
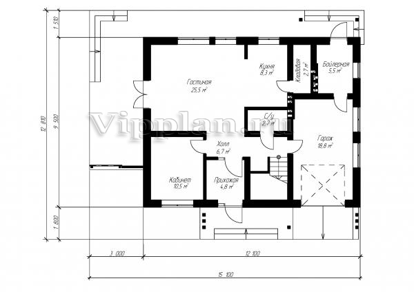
План первого этажа


Гараж — 18,8 кв м
Гостиная — 25,5 кв м
Кухня — 8,3 кв м
Холл — 6,7 кв м
Прихожая — 4,8 кв м
Кабинет — 10,5 кв м
С/у — 2,7 кв м
Кладовая — 2,7 кв м
Бойлерная — 5,5 кв м

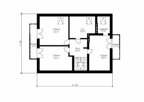
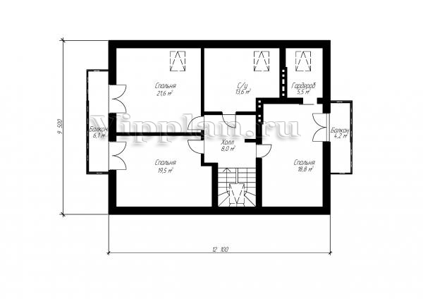
План мансардного этажа


Балкон — 6,1 кв м
Спальня — 21,6 кв м
С/у — 13,6 кв м
Гардероб — 5,5 кв м
Спальня — 18,8 кв м
Холл — 8,0 кв м
Спальня — 19,5 кв м
Балкон — 4,2 кв м
Дом с мансардой, гаражом, террасой и балконами Дом с мансардой, гаражом, террасой и балконами Дом с мансардой, гаражом, террасой и балконами Дом с мансардой, гаражом, террасой и балконами

Модификации проектов

Внесение изменений и привязка к участку строительства

В любой из проектов от компании VIPplan - Каневская по вашему желанию могут быть внесены изменения в материалы стен, материалы наружной отделки дома, а также будет произведена адаптация проекта под конкретный регион строительства (с учетом грунтов региона, геологических особенностей вашего участка и местных климатических условий) - БЕСПЛАТНО !!! (кроме проектов со скидкой и проектов наших партнеров).

Любой из проектов, размещенных на сайте kanevskaya.vipplan.ru мы можем выполнить из требуемых вам строительных материалов: ячеистый бетон (газобетон, пеноблок), керамоблок, кирпич, шлакоблок, бетонный блок, дерево (брус, клееный брус), каркасная технология (деревянный каркас, металлокаркас (ЛСТК)).

Фасад дома и его наружную отделку так же возможно выполнить с применением различных облицовочных материалов: структурной штукатурки, (с утеплителем и без), сайдингом (пластиковый или металлосайдинг), фиброплитами, кирпича.

 
6 Избранные
проекты

Доставка проектов по России: Москва (Московская область), Санкт-Петербург (Ленинградская область), Краснодар, Ростов-на-Дону, Ставрополь, Сочи, Волгоград, Новосибирск, Белгород, Брянск, Воронеж, Саратов, Хабаровск, Астрахань, Нальчик, Владикавказ, Екатеринбург, Тюмень, Самара, Нижний Новгород, Казань, Пермь, Уфа, Челябинск, Красноярск, Ханты-Мансийск, Иркутск, Курган, Оренбург, Омск, Томск, Барнаул, Новокузнецк, Кемерово, Абакан, Чита, Якутск, Южно-Сахалинск, Петропавловск-Камчатский и страны ближнего зарубежья: Белоруссия, Украина, Казахстан